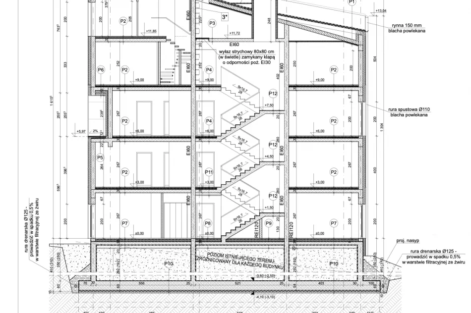
Zapomniano o... windzie. Przetarg unieważniony
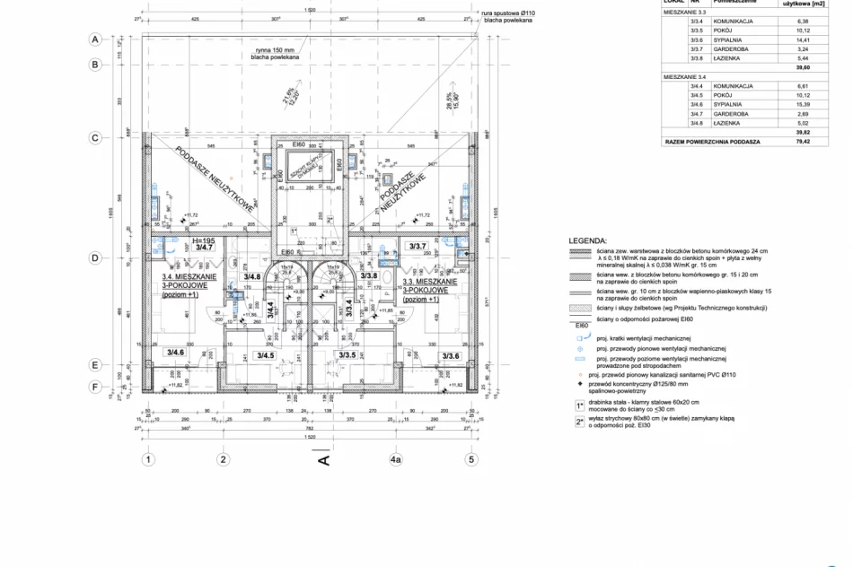
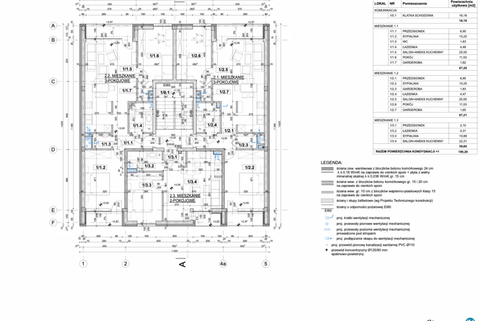
Limanowa. Miasto unieważniło przetarg na wykonanie projektu i budowę ośmiu bloków przy ul. Bednarczyka w Limanowej. Samorząd chce zwiększyć zakres zamówienia o zaprojektowanie i wykonanie windy w każdym z budynków.