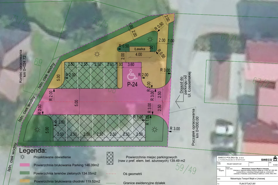
Oferta na ponad 4 mln. Miasto liczyło, że zapłaci... 500 tys. zł
Limanowa. Oferta opiewała na 4,2 mln zł, samorząd liczył, że inwestycję uda się sfinansować za... 500 tys. zł. Miasto zmuszone jest „odchudzić” zakres zadania polegającego na budowie w Limanowej trzech parkingów „park & ride”.