Aktualności
Powrót
Newsroom
Kronika policyjna
Portal szkolny
Ludzie
Historia
Wybory
Rozmaitości
Religia
Fotointerwencja
Felietony
Ogłoszenia płatne
Zdrowie
Kultura
Region - Polska - Świat
Ogłoszenia
Powrót
Praca
Nieruchomości
Usługi
Motoryzacja
Nauka
Kupię
Sprzedam
Oddam za darmo
Szukam
Zwierzaki
Znaleziono
Dodaj ogłoszenie
Galeria
Powrót
Wydarzenia
Wypadki
Free time
Sport
Konkurs
Absurdarium
Forum
Powrót
Wydarzenia
Porady
Hyde park
Tematy archiwalne
Motocykle
Kontakt
Wyłączenia prądu
twoje konto
Zaloguj się
Zaloguj się
Jeśli nie masz jeszcze konta
Zarejestruj się
6
°
dziś
4
°
jutro
Piątek, 05 grudnia
Saba, Kryspin, Gerard, Sabina, Edyta, Krystyna, Norbert
kino
apteki
powietrze
kamera
Msze św.
Strona główna
Aktualności
Newsroom
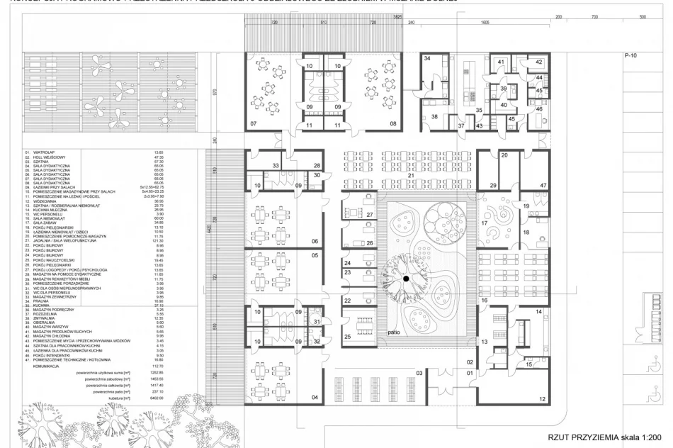
Tak ma wyglądać nowe przedszkole ze żłobkiem
1
/ 5
Tak ma wyglądać nowe przedszkole ze żłobkiem
Mszana Dolna. W poniedziałek podczas sesji Rady Miejskiej burmistrz Mszany Dolnej Anna Pękała przedstawiła koncepcję nowego przedszkola.
Powrót do artykułu