Oferta na domy dla Romów zbyt droga. Miasto stara się o zwiększenie dotacji
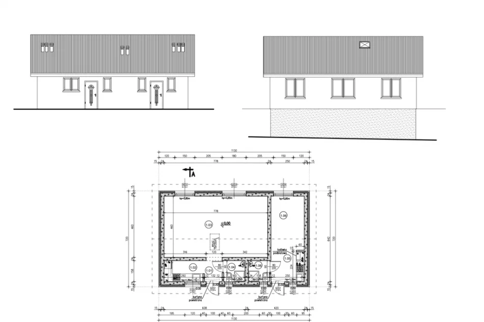
Limanowa. Jedyna oferta złożona w przetargu przewyższa kwotę, jaką na budowę dwóch domów przy ul. Żwirki i Wigury dla rodzin romskich z ul. Wąskiej zabezpieczył samorząd Limanowej. Władze miasta zwróciły się już do urzędu wojewódzkiego o zwiększenie dotacji z tzw. programu romskiego.